• Pand Type
  • Duplex, Appartement
  • 3
  • Slaapkamers
  • 2
  • Badkamers
  • 13
  • Staat
  • 133 m²
  • Area Size
Standingvol nieuwbouwproject Residentie DE OUDE MELKERIJ…
  • €369.000

Beschrijving

VALIMMAS verkoopt duplex-appartement A8 in “Residentie De Oude Melkerij”, een welgelegen en stijlvol nieuwbouwproject met 8 comfortabele appartementen, een gelijkvloerse handelsruimte (apotheek), 19 (onder- en bovengrondse) autostandplaatsen/garages, 8 kelders en een gemeenschappelijke fietsenstalling.

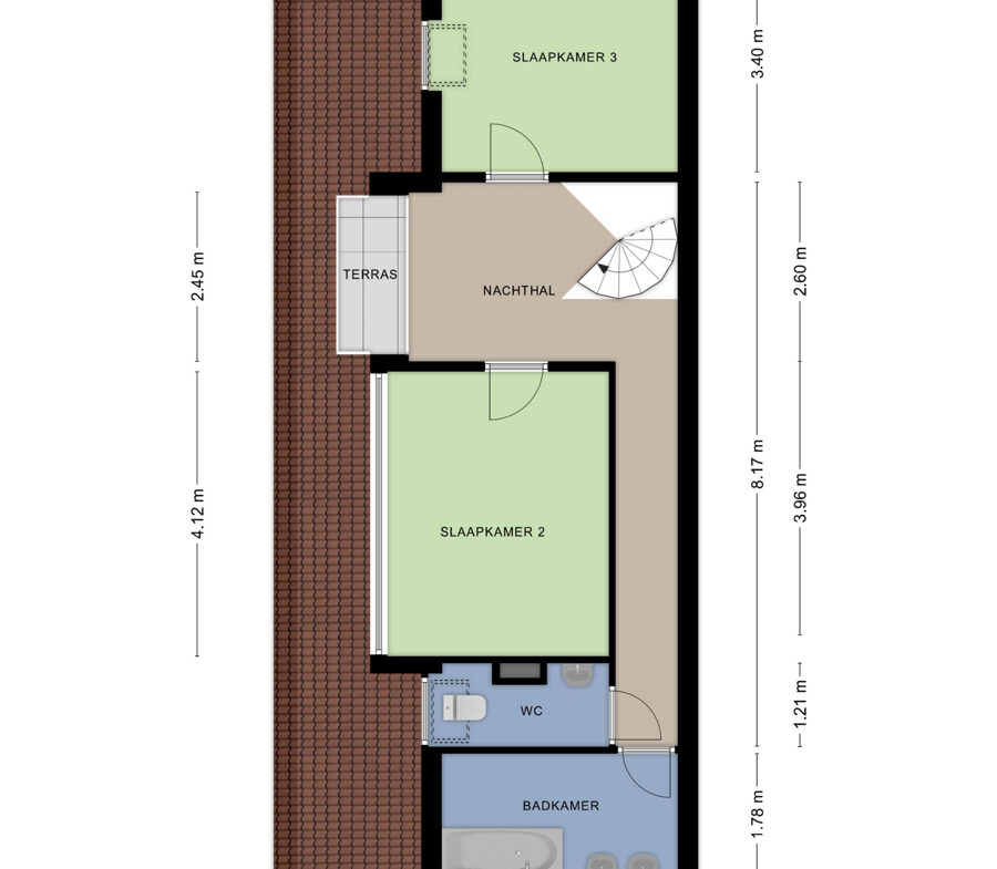
Appartement A8 (± 133m² + 2 terrassen) omvat oa. een inkomhal, een berging/wasplaats, een living met open ingerichte keuken (keukenkasten, inductiekookplaat, dampkap, combi-oven, vaatwas, koelkast, gootsteen), een nachthal met toilet, drie mooie slaapkamers, en twee comfortabele badkamers. Met alle hedendaags comfort en onmiddellijk instapklaar !

Het gebouw en de appartementen zijn inmiddels volledig afgewerkt, inclusief de schilderwerken !!!
Verkoop onder BTW-stelsel – gunstige regeling = slechts 6% ipv 21% BTW op constructiewaarde (mits voldaan aan de voorwaarden).

Gelegen langsheen de N9, dewelke recent volledig heraangelegd wordt. Kort bij centrumfuncties (winkels, scholen, sportcomplex, park, station en bushaltes…) en met makkelijke verbindingen naar Brussel, Ring 0, E40, A12, industriezones Zellik…

Contacteer ons gerust vrijblijvend voor meer informatie: info@valimmas.be – 02/452.59.25.

  • Adres: Brusselsesteenweg 119
  • Stad: Asse
  • Provincie: Vlaams-Brabant
  • Postcode: 1730

Details van het pand

Bijgewerkt op februari 27, 2026 filiaal van 5:04 pm
  • Prijs €369.000
  • Bewoonbare oppervlakte 133 m²
  • Grondoppervlakte 1117 m²
  • Slaapkamers 3
  • Badkamers 2
  • Pand Type Duplex, Appartement
  • Pand Status Te Koop
  • Staat 13
  • Terras Ja
VALIMMAS & Co BV

Stel je vraag!

Ook bekeken op My Future Home