• Pand Type
  • Handelspand
  • 0
  • Slaapkamer
  • 0
  • Badkamer
  • Staat
  • Area Size
Investeringsopportuniteit: gebouw met plannen & lift voor handelspand en 4 appartementen
  • €349.000

Beschrijving

Ontdek dit uitzonderlijke pand in het hart van Blankenberge, ideaal gelegen op minder dan 180 meter van de Zeedijk. Dit gebouw met vijf volwaardige verdiepingen biedt een zee aan mogelijkheden voor wie op zoek is naar een slimme investering of een eigen project aan de kust.

Het pand beschikt over een solide structuur en ruime volumes, perfect voor wie een renovatieproject met potentieel zoekt. Dankzij de royale indeling en de verschillende verdiepingen zijn er tal van mogelijkheden om het pand naar eigen smaak en visie te ontwikkelen.

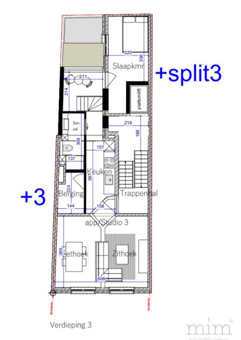
Er zijn reeds plannen (met lift)  beschikbaar voor de herontwikkeling van het gebouw naar een handelspand op het gelijkvloers met daarboven vier appartementen, wat dit pand bijzonder interessant maakt voor investeerders of projectontwikkelaars.
Met zijn uitstekende ligging, ruime opbouw en sterke ontwikkelingsmogelijkheden is dit een unieke opportuniteit in een bruisende kuststad.

Mis deze kans niet — het transformatiepotentieel is enorm.

Studio’s/app circa 60m² elk. 

Voor meer info en/of een bezoek, bel mij vandaag nog op 0472/50.08.58 – Mohamed

  • Adres: Vissersstraat 17
  • Stad: Blankenberge
  • Provincie: West-Vlaanderen
  • Postcode: 8370
  • Land: België

Details van het pand

Bijgewerkt op april 8, 2026 filiaal van 10:01 am
  • Prijs €349.000
  • Slaapkamer 0
  • Badkamer 0
  • Garage 0
  • Pand Type Handelspand
  • Pand Status Te Koop

EPC

  • EPC : F
  • EPC Waarde: 993
  • A+
  • A
  • B
  • C
  • D
  • E
  • 993 | EPC F
    F
  • G
  • H
DW Immo Wellens & Partners

Stel je vraag!