PROJECTGROND VOOR 2 APPARTEMENTEN
- €150.000
Beschrijving
PROJECTGROND VOOR 2 APPARTEMENTEN TE VIANE
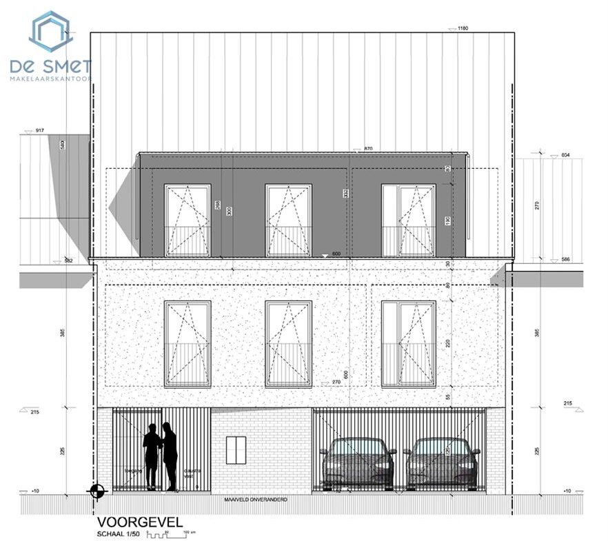
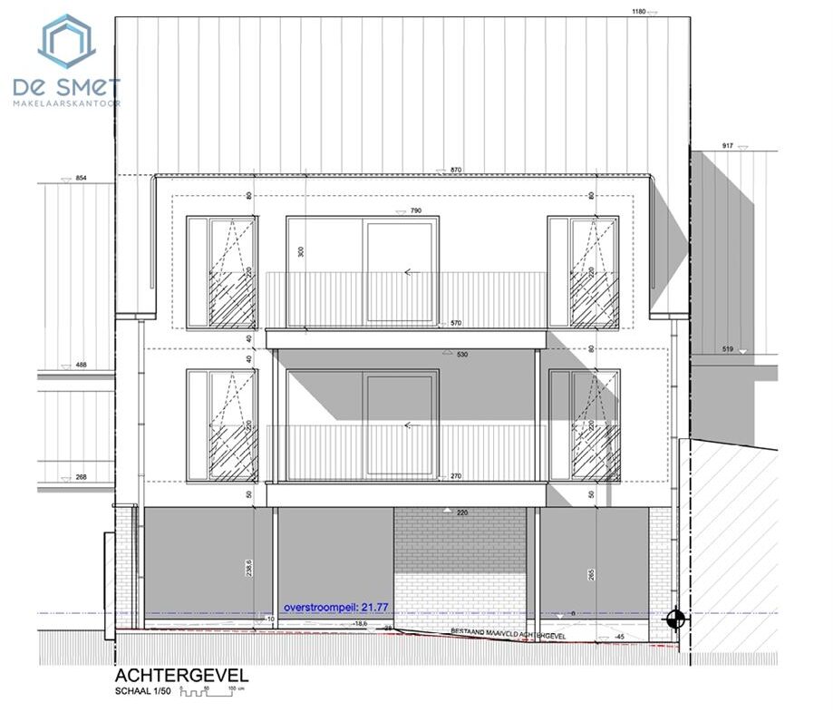
PROJECTGROND MET PLANNEN EN VERGUNNING VOOR 2 APPARTEMENTEN .
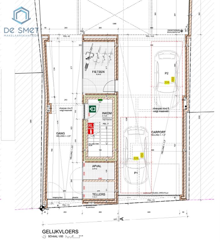
Dit betreft een gelijkvloers waar er inkomhal, bergingen en fietsenstalling alsook grote carport aanwezig is voor 2 wagens.alsook een tuinstrook.
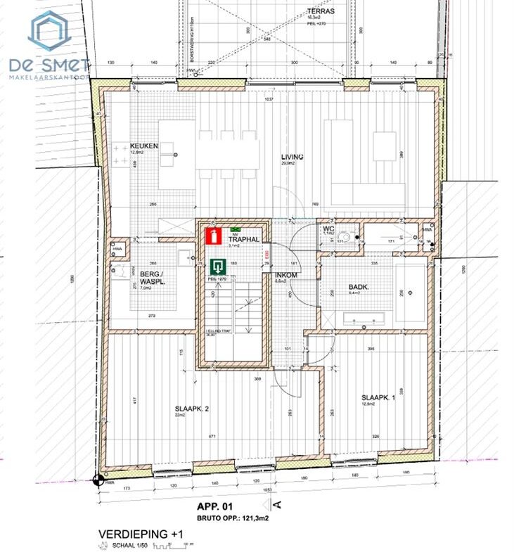
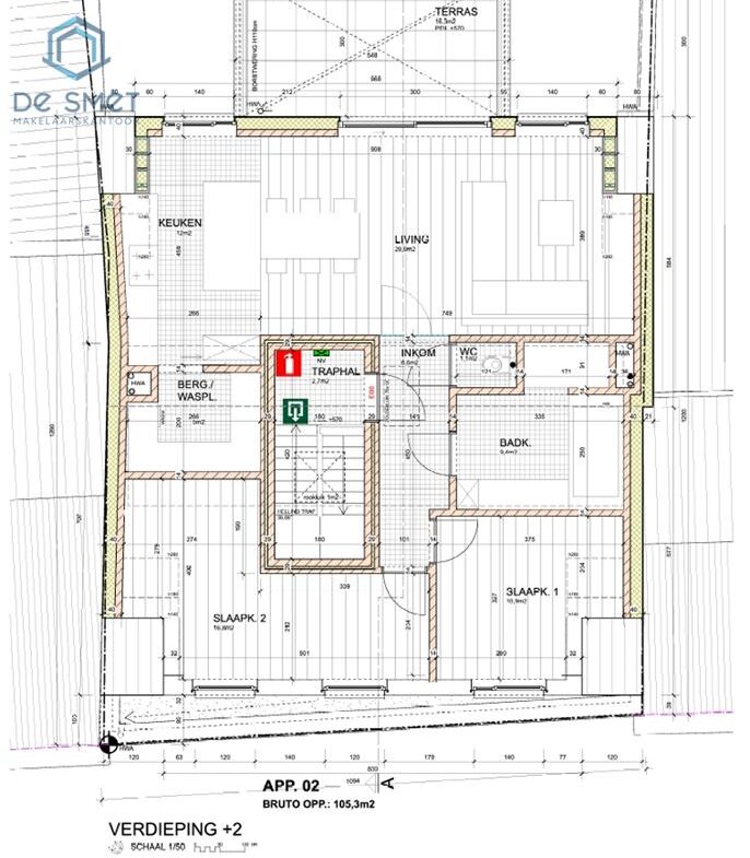
Op de eerste verdieping en 2e verdieping treft men 2 appartementen met als indeling:
Inkomhal, gastentoilet, ruime lichtrijke living met open keuken en terras, berging, badkamer en 2 slaapkamers.
De plannen zijn reeds voorhanden en worden meegeleverd alsook de vergunning voor de bouw van de 2 appartementen;
Voor inlichtingen of bezoek gelieve op de advertentie te reageren, wij bellen u dan zelf op om een afspraak in te plannen.
Adres
Open in Google Maps-
Stad: Geraardsbergen
-
Provincie: Oost-Vlaanderen
Details van het pand
Bijgewerkt op november 11, 2025 filiaal van 6:13 pm-
Prijs €150.000
-
Bewoonbare oppervlakte 298 m²
-
Grondoppervlakte 300 m²
-
Slaapkamers 4
-
Badkamers 2
-
Pand Type Huis
-
Pand Status Te Koop
Contact
Meer over de verkoperOok bekeken op My Future Home
Uniek Handelspand met Woning, Atelier en Ruime Tuin Toplocatie met Tal van Mogelijkheden!
- €375.000
Luxe afgewerkte energiezuinige woning met 5 slaapkamers, lift en prachtig zicht op de jachthaven van Geraardsbergen
- €489.000