Hooglede: gesloten nieuwbouwwoning met 3 slaapkamers, zuid-gerichte tuin, carport en berging op een perceel van 169 m², centrale ligging
- €350.894
Hooglede: gesloten nieuwbouwwoning met 3 slaapkamers, zuid-gerichte tuin, carport en berging op een perceel van 169 m², centrale ligging
- €350.894
Beschrijving
NOVEMBER – INVESTERINGSMAAND – Uw persoonlijk bezoek op reservatie
Bent u opzoek naar een strakke gesloten totaal afgewerkte (incl. tuin en terras) comfortabele nieuwbouwwoning met 3 slaapkamers, zuid-gerichte tuin, carport en berging op een perceel van 169 m².
Deze duurzame nieuwbouwwoning in opbouw (2025) is gelegen in Hooglede en geniet van een makkelijke toegang naar centrum Roeselare en Staden.
6 % is mogelijk bij aankoop van een nieuwbouwwoning onder bepaalde voorwaarden (voor particulieren of investeerders).
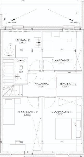
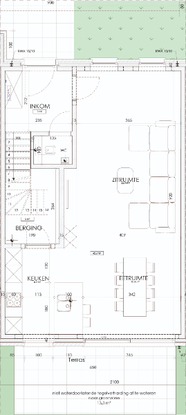
De woning bestaat uit twee verdiepingen en een plat dak. De gelijkvloerse verdieping bevat de volgende indeling:
- Inkomhal met gastentoilet
- Lichtrijke zit- en eetruimte met grote raampartijen
- Kwalitatieve open keuken voorzien van hedendaags comfort met bijhorende berging
- Voorzien van een E-peil van 25
Adres
Open in Google Maps-
Adres: Diksmuidesteenweg 106
-
Stad: Hooglede
-
Provincie: West-Vlaanderen
-
Postcode: 8830
-
Land: België
Details van het pand
Bijgewerkt op november 12, 2025 filiaal van 7:22 am-
Prijs €350.894
-
Grondoppervlakte 169 m²
-
Slaapkamers 3
-
Badkamer 0
-
Garage 0
-
Bouwjaar 2025
-
Pand Type Huis
-
Pand Status Te Koop
-
Tuin Ja
-
Oriëntatie Tuin/Terras ZW
-
Aantal gevels Gesloten bewoning
Contact
Meer over de verkoperOok bekeken op My Future Home
Hooglede: strakke halfopen nieuwbouwwoning met 3 slaapkamers, zuid-gerichte tuin, carport en berging op een perceel van 206 m², centrale ligging.
- €424.131
Centraal doch rustig gelegen gezinswoning met 3 slpkmrs, tuin en garage (Ref. 16599)
- €275.000