• Pand Type
  • Appartement
  • 3
  • Slaapkamers
  • 1
  • Badkamer
  • Nieuwbouw
  • Staat
  • 123 m²
  • Area Size
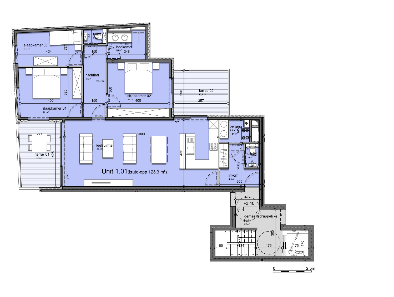
KORTEMARK: Appartement 1.01 met 3 slaapkamers en 2 terrassen gelegen op de eerste verdieping van Nieuwbouwresidentie Mila en Nora
  • €334.181

Beschrijving

KORTEMARK: Appartement 1.01 met 3 slaapkamers en 2 terrassen gelegen op de eerste verdieping van Nieuwbouwresidentie Mila en Nora

Deze kleinschalige nieuwbouwresidentie is centraal gelegen nabij het station en op wandelafstand van de Markt in Kortemark. Met de E403 op 8,5 km geniet het project een uitstekende bereikbaarheid. In de onmiddellijke buurt vindt u er onder andere scholen, sporthal, natuur- en recreatiedomein Krekemeersen, warenhuizen, bakkerij, slagerij, apotheek, bank … 

“Residentie Mila en Nora” bestaat uit 2 inkomhallen en 4 verdiepingen. De gelijkvloerse verdieping bevat 6 dubbele garageboxen, 5 enkele garageboxen en 5 autostaanplaatsen. In de eerste en tweede verdieping vinden we per verdieping 5 villa-appartementen. De dakverdieping bestaat uit 1 luxe-penthouse. 

Dit appartement wordt afgewerkt met de nodige precisie. De grote raampartijen, de aangename bewoonbare oppervlakte van 123,3m² en de twee ruime zitterrassen (10,11m² en 9,35m²) zorgen voor een zalig luchtig gevoel. De open keuken en de badkamer worden uitgerust met alle hedendaags comfort. 

Appartement 1.01 is gelegen op de eerste verdieping en is als volgt ingedeeld:  
–    Inkomhal met gastentoilet en berging 
–    Ruime leefruimte voorzien van grote raampartijen
–    Kwalitatieve open keuken voorzien van alle hedendaags comfort
–    Nachthal met individueel toilet
–    3 aangename slaapkamers
–    Stijlvolle badkamer

Mogelijkheid tot aankopen van een enkele/dubbele garagebox en/of een autostandplaats in het gebouw. 

TECHNISCH : 
–    Centrale verwarming op aardgas met condenserende wandketel
–    Hoog-rendementsbeglazing met isolerende PVC-beraming
–    Thermische isolatie conform EPB-regelgeving
–    Ventilatiesysteem conform EPB-regelgeving
–    Brandwerende en inbraakveilige Inkomdeur 
–    Conforme elektriciteit 

Bel Nik (T. 0472 38 97 46) vrijblijvend op voor meer informatie. Wij begeleiden u graag met de glimlach op zoek naar uw droomwoning & commercieel pand. 

  • Adres: Hoogledestraat 35
  • Stad: Kortemark
  • Provincie: West-Vlaanderen
  • Postcode: 8610
  • Land: België

Details van het pand

Bijgewerkt op januari 31, 2026 filiaal van 7:14 am
  • Prijs €334.181
  • Bewoonbare oppervlakte 123 m²
  • Grondoppervlakte 145 m²
  • Slaapkamers 3
  • Badkamer 1
  • Garage 0
  • Pand Type Appartement
  • Pand Status Te Koop
  • Staat Nieuwbouw
  • Aantal gevels Gesloten bewoning
  • WC's 2
Domicill Vastgoed
  • Domicill Vastgoed

Stel je vraag!