• Pand Type
  • Appartement
  • 2
  • Slaapkamers
  • 2
  • Badkamers
  • Nieuwbouw
  • Staat
  • 152 m²
  • Area Size
KORTEMARK: Penthouse 3.01 met 2 comfortabele slaapkamers, 2 ensuite-badkamers en 111,60m² uitgestrekt zitterras gelegen op de derde verdieping van Nieuwbouwresidentie Mila en Nora
  • €530.403

Beschrijving

Deze kleinschalige nieuwbouwresidentie is centraal gelegen nabij het station en op wandelafstand van de Markt in Kortemark. Met de E403 op 8,5 km geniet het project een uitstekende bereikbaarheid. In de onmiddellijke buurt vindt u er onder andere scholen, sporthal, natuur- en recreatiedomein Krekemeersen, warenhuizen, bakkerij, slagerij, apotheek, bank … 

“Residentie Mila en Nora” bestaat uit 2 inkomhallen en 4 verdiepingen. De gelijkvloerse verdieping bevat 6 dubbele garageboxen, 5 enkele garageboxen en 5 autostaanplaatsen. In de eerste en tweede verdieping vinden we per verdieping 5 villa-appartementen. De dakverdieping bestaat uit 1 luxe-penthouse. 

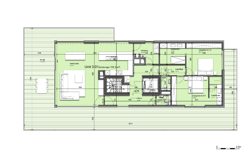
Deze penthouse wordt afgewerkt met de nodige precisie. De grote raampartijen, de royale bewoonbare oppervlakte van 153,2m² en het uitgestrekt zitterras van maar liefst 111.6m² zorgen voor een zalig luchtig gevoel. De open keuken en de ensuite-badkamers worden uitgerust met alle hedendaags comfort. 

Penthouse 3.01 is gelegen op de derde verdieping en is als volgt ingedeeld:  
–    Inkomhal met gastentoilet en onmiddellijke toegang tot traphal en lift
–    Ruime leefruimte voorzien van grote raampartijen
–    Kwalitatieve open keuken voorzien van alle hedendaags comfort
–    Technische berging (10,8m²)
–    Nachthal met individueel toilet en toegang tot 2 uiterst comfortabele slaapkamers
–    Elke slaapkamer heeft een eigen ensuite-badkamer

Mogelijkheid tot aankopen van een enkele/dubbele garagebox en/of een autostandplaats in het gebouw. 

TECHNISCH : 
–    Centrale verwarming op aardgas met condenserende wandketel
–    Hoog-rendementsbeglazing met isolerende PVC-beraming
–    Thermische isolatie conform EPB-regelgeving
–    Ventilatiesysteem conform EPB-regelgeving
–    Brandwerende en inbraakveilige Inkomdeur 
–    Conforme elektriciteit 

Bel Nik (T. 0472 38 97 46) vrijblijvend op voor meer informatie. Wij begeleiden u graag met de glimlach op zoek naar uw droomwoning & commercieel pand.

  • Adres: Hoogledestraat 35
  • Stad: Kortemark
  • Provincie: West-Vlaanderen
  • Postcode: 8610
  • Land: België

Details van het pand

Bijgewerkt op februari 6, 2026 filiaal van 7:23 am
  • Prijs €530.403
  • Bewoonbare oppervlakte 152 m²
  • Grondoppervlakte 272 m²
  • Slaapkamers 2
  • Badkamers 2
  • Garage 0
  • Pand Type Appartement
  • Pand Status Te Koop
  • Staat Nieuwbouw
  • Aantal gevels Gesloten bewoning
  • WC's 2
Domicill Vastgoed
  • Domicill Vastgoed

Stel je vraag!

Ook bekeken op My Future Home