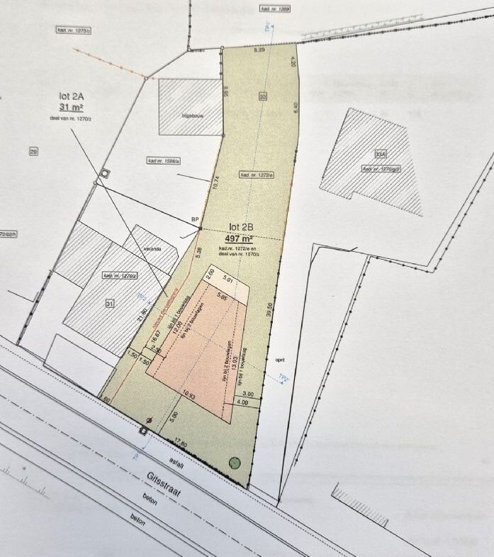
Lot bouwgrond voor alleenstaande woning. Opp 497m². (Ref.16591)
- €121.500
Lot bouwgrond voor alleenstaande woning. Opp 497m². (Ref.16591)
- €121.500
Beschrijving
Uniek gelegen perceel bouwgrond zonder bouwverplichtingen te Kortemark.
Mogelijkheid tot bouwen van een alleenstaande woning met garage (onder voorbehoud van een nog te verkrijven vergunning).
Alle stedenbouwkundige inlichtingen ten kantore
P- en G-score: A. bevindt zich niet in een risicozone voor overstromingen.
Bel of mail naar info@immostad.com voor alle info (Ref.16591)
Adres
Open in Google Maps-
Adres: Gitsstraat 33
-
Stad: Kortemark
-
Provincie: West-Vlaanderen
-
Postcode: 8610
-
Land: België
Details van het pand
Bijgewerkt op oktober 1, 2025 filiaal van 3:01 pm-
Prijs €121.500
-
Bewoonbare oppervlakte 102 m²
-
Grondoppervlakte 497 m²
-
Slaapkamers 3
-
Bouwjaar 2025
-
Pand Type Huis
-
Pand Status Te Koop
-
Staat Instapklaar
EPC
-
EPC : F
-
EPC Waarde: 1119
-
EPC Certificaat: 3293335
- A+
- A
- B
- C
- D
- E
- 1119 | EPC FF
- G
- H
Contact
Meer over de verkoperOok bekeken op My Future Home
Rustig gelegen alleenstaande woning met 2 ruime slpks, kkn, bdk, gezellige tuin en garage,… Opp 659m². (Ref.16481)
- €285.000
Centraal gelegen gelijkvloerse en instapklare gezinswoning met 3 slpkmrs, prachtige kkn en bdkmr en mooie tuin .(Ref. 16600)
- €315.000