• Pand Type
  • Appartement
  • 2
  • Slaapkamers
  • 1
  • Badkamer
  • Nieuwbouw
  • Staat
  • Area Size
  • 2022
  • Bouwjaar
Modern nieuwbouwappartement te koop in Roeselare met gunstige oriëntatie

Beschrijving

Modern nieuwbouwappartement te koop in Roeselare met gunstige oriëntatie (6% btw mogelijk)

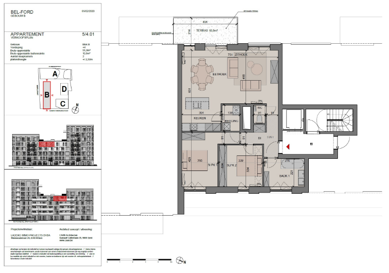
Ontdek dit prachtig nieuwbouwappartement, gelegen in het hart van Roeselare. Met een bewoonbare oppervlakte van 95,80 m² en een zonnig terras van 10,80 m², biedt deze woonunit alles wat u nodig heeft voor comfortabel en stijlvol wonen.

Het appartement beschikt over twee volwaardige slaapkamers en is afgewerkt met oog voor detail en kwaliteit. Dankzij de grote raampartijen geniet u van een overvloed aan natuurlijk licht en een ruimtelijk gevoel in elke leefruimte.

Troeven van dit appartement:
– Grote raampartijen die zorgen voor veel lichtinval
– Ruim zitterras van 10,8 m²
– Twee comfortabele slaapkamers
– Ondergrondse parkeerplaats beschikbaar
– Meerdere fietsenstallingen beschikbaar
– Gelegen in een rustig binnengebied
– Hoogwaardige en duurzame afwerking
– Unieke ligging nabij het centrum
– Vernieuwing van de Wortelstraat in volle ontwikkeling

Vanaf juli 2025 is er 6% BTW mogelijk bij aankoop van een nieuwbouwwoning onder bepaalde voorwaarden.

Bel ons vrijblijvend op voor een bezoek en info. Wij begeleiden u graag met de glimlach op zoek naar uw droomwoning & commercieel pand. T. 051 62 40 40

  • Adres: Hendrik Consciencestraat 5
  • Stad: Roeselare
  • Provincie: West-Vlaanderen
  • Postcode: 8800
  • Land: België

Details van het pand

Bijgewerkt op oktober 21, 2025 filiaal van 7:01 am
  • Grondoppervlakte 95.8 m²
  • Slaapkamers 2
  • Badkamer 1
  • Garage 0
  • Bouwjaar 2022
  • Pand Type Appartement
  • Pand Status Te Koop
  • Staat Nieuwbouw
  • Tuin Ja
  • Oriëntatie Tuin/Terras W
  • WC's 1
Domicill Vastgoed
  • Domicill Vastgoed

Stel je vraag!

Ook bekeken op My Future Home