Roeselare-Hoogleedsesteenweg. Bouwgrond van +/- 875m2, sloop -en wederopbouw kan aan 6% btw onder voorwaarden. Ideaal voor VILLABOUW, PRAKTIJK, KANTOOR… op topligging. Goede passage!
Beschrijving
Roeselare-Hoogleedsesteenweg. Bouwgrond van +/- 875m2, sloop -en wederopbouw kan aan 6% btw onder voorwaarden. Ideaal voor VILLABOUW, PRAKTIJK, KANTOOR… op topligging.
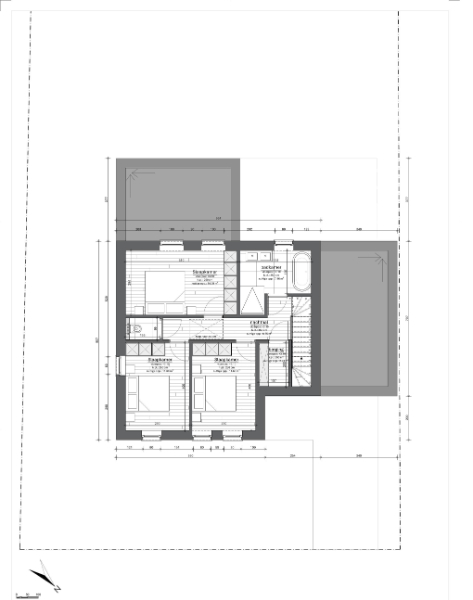
Dit perceel bouwgrond wordt te koop aangeboden voor 325.000 Euro + deze simulatie voor deze prachtige statige villa met 3-4 slaapkamers en bureel.
Zo krijgt u al een preview van de mogelijkheden.
Onder de gunstregeling kan hier aangekocht worden onder sloop en wederopbouw aan 6% BTW wat een korting van maar liefst 15% BTW betekent.
De prijs voor de bouwgrond = 325.000 vraagprijs.
Constructie kan reeds vanaf > 400.000 + btw en kosten afhankelijk van de keuze, afwerking en stijl van uw alleenstaande villa.
Vrijblijvend kan u een afspraak maken om de mogelijkheden af te toetsen maar ook een eerste raming van het kostenplaatje te berekenen.
Bel Nik 0472389746
De huidige woning dient wel gesloopt te worden.
Deze simulatie is slechts een voorbeeld van hoe deze woning er zou kunnen uitzien.
M.a.w. er is nog geen omgevingsvergunning voor deze nieuwe villa.
Uiteraard kan u de stijl en ontwerp verder gaan bepalen volgens de opgelegde bouwvoorschriften.
In samenspraak met de architect die hier de nodige expertise hiervoor opstartte.
Ligging. Deze invalsweg is op dit moment iets drukker dan gewoonlijk maar is een goed gelegen zone voor praktijk, kantoor of bepaalde commerciële activiteiten.
Goed gelegen en uiterst aantrekkelijk wegens zijn uitstekende zichtbaarheid in de straat.
Geniet van een zongerichte diepe tuin en terras, de achterliggende tuin is verrassend rustig met extra mogelijkheden naar de toekomst toe.
Laat u begeleiden door onze vastgoedexpert Nik en reserveer uw tijdslot voor een eerste kennismaking
bij ons op kantoor, we bekijken samen de plannen en beantwoorden graag uw vragen opmerkingen. Bel 051 62 40 40.
Adres
Open in Google Maps-
Adres: Hoogleedsesteenweg 335
-
Stad: Roeselare
-
Provincie: West-Vlaanderen
-
Postcode: 8800
-
Land: België
Details van het pand
Bijgewerkt op april 17, 2026 filiaal van 7:02 am-
Grondoppervlakte 875 m²
-
Slaapkamer 0
-
Badkamer 0
-
Garage 0
-
Pand Type Huis
-
Pand Status Te Koop
-
Aantal gevels Open bebouwing
EPC
-
EPC : F
-
EPC Waarde: 1267
- A+
- A
- B
- C
- D
- E
- 1267 | EPC FF
- G
- H
Contact
Meer over de verkoperOok bekeken op My Future Home
Te renoveren villa, ideaal geschikt voor bijberoep met veel ruimte en grote tuin in centrum Beveren opp 837 m²
Roeselare : Instapklare hoek duplexappartement met 1 slaapkamer (kan opgesplitst worden ) met ruim terras nabij centrum + zolder
- €185.000