Roeselare – centrum : Kantoorruimte van 306m² bruto en terras op commerciële ligging
- €3.094
- €3.094
Beschrijving
Roeselare – centrum : Kantoorruimte van 306m² bruto en terras op commerciële ligging
Kom en ontdek het prachtige R-Plaza, een recent kantorencomplex perfect gelegen tussen Kortrijk en Brugge, pal aan afrit E403. Hier vind je een levendig geheel met een Albert Heijn, een apotheek en een winkelcentrum. De locatie is moeiteloos bereikbaar, met aparte autostaanplaatsen en een eigen ingang.
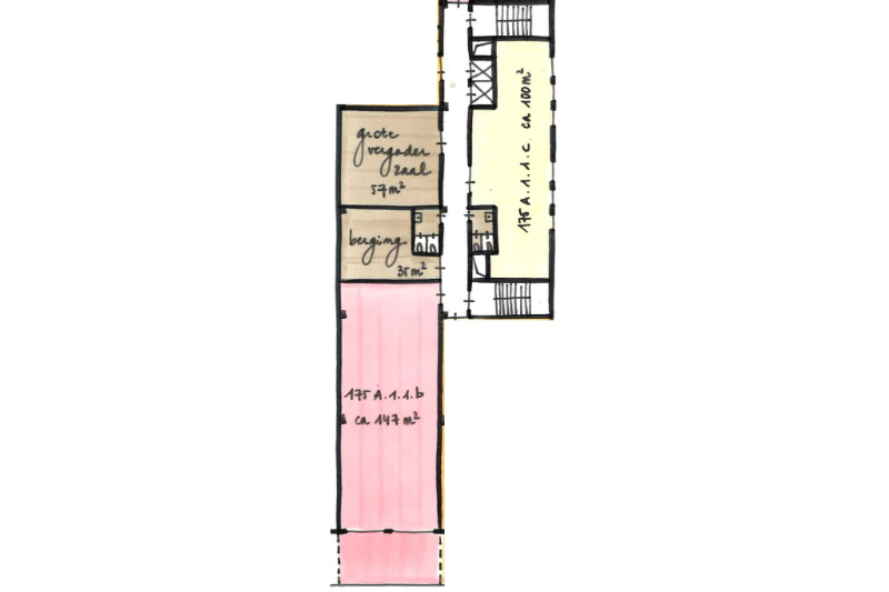
Dit veelzijdige complex, gelegen op 175A. De kantoorruimte van 306m² bruto kan gehuurd worden voor €3.094 per maand.
Je hebt de vrijheid om de ruimte naar eigen wens in te richten. Toiletten en gemeenschappelijke ruimtes zijn reeds beschikbaar. Er is een lift en terras. De onroerende voorheffing en syndic wordt apart verrekend.
De autostaanplaatsen zijn beschikbaar voor verhuur tegen een tarief van €60 per maand.
Waar wacht je nog op? Maak deel uit van deze bruisende omgeving en creëer je ideale werkplek bij R-Plaza!
Bel ons vrijblijvend op voor een bezoek en info. Wij begeleiden u graag met de glimlach op zoek naar uw droomwoning & commercieel pand. T. 051 62 40 40.
Adres
Open in Google Maps-
Adres: Koestraat 175A
-
Stad: Roeselare
-
Provincie: West-Vlaanderen
-
Postcode: 8800
-
Land: België
Details van het pand
Bijgewerkt op maart 11, 2026 filiaal van 7:05 am-
Prijs €3.094
-
Grondoppervlakte 306 m²
-
Slaapkamer 0
-
Badkamer 0
-
Garage 0
-
Pand Type Handelspand
-
Pand Status Te Huur
-
Aantal gevels Gesloten bewoning
EPC
-
EPC : X
-
EPC Certificaat: 20240229-0030983543-NR-1
- A+
- A
- B
- C
- D
- E
- F
- G
- H
Contact
Meer over de verkoperOok bekeken op My Future Home
Roeselare, stadsrand: Vlot bereikbare zeer ruime open en lichtrijke kantoorruimte (172m2) met parking aan ring van Roeselare
- €932
Roeselare, stadsrand: Vlot bereikbare zeer ruime open en lichtrijke kantoorruimte (307m2) met parking aan ring van Roeselare
- €1.663