• Pand Type
  • Handelspand
  • 0
  • Slaapkamer
  • 0
  • Badkamer
  • Staat
  • Area Size
  • 2021
  • Bouwjaar
Roeselare-stadsrand : Trendy kantoorruimte van100-125m² in een recent gebouw met mogelijkheid tot huren van autostaanplaatsen.
  • €935

Beschrijving

Roeselare-stadsrand. Trendy kantoorruimte van 100-125m² op het 2de, gelegen in een recent energiezuinig kantoorgebouw. Uiterst visueel en centraal gelegen!

Het kantoor is centraal gelegen aan de kleine ring van Roeselare en beschikt over een vlotte bereikbaarheid.
1 verdieping = 2 hoog / 2de 
Gelijkvloers en 1ste verdieping is recent verhuurd.
Voldoende parkeergelegenheid + mogelijkheid om afgesloten autostaanplaatsen te huren aan 60 euro/maand.

Het bijzonder lichtrijke kantoor zelf heeft:
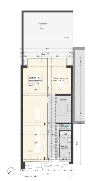
==> Tweede verdieping van +/-100-125m² 
Verder is er extra : een toilet | extra berging | gemeenschappelijke delen | kitchenette | douche
Er zijn 2-3 aparte ruimtes. hoofdbureau | panoramisch bureel | werkbureau

Verwarming op gas via lucht op lucht. En airco warm / koud die zorgt voor aangename luchtcirculatie.
Er zijn autostaanplaatsen te huur die zich bevinden op een volledig afgesloten autoparking op <100m van het kantoor.

Verhuring 1-3 jaar overeen te komen onder gemeen huurrecht.

Dit kantoor biedt ruimte aan 3 verdiepingen/ elk 100-125m².

De autostaanplaatsen zijn te huur voor 60 euro per stuk.

Bel ons vrijblijvend op voor een bezoek en info. Wij begeleiden u graag met de glimlach op zoek naar uw droomwoning & commercieel pand. En garanderen met veel plezier een “klare kijk” op (h)eerlijk vastgoed. T. 051624040 

  • Adres: Koning Albert I-laan 135
  • Stad: Roeselare
  • Provincie: West-Vlaanderen
  • Postcode: 8800
  • Land: België

Details van het pand

Bijgewerkt op oktober 27, 2025 filiaal van 7:01 am
  • Prijs €935
  • Grondoppervlakte 125 m²
  • Slaapkamer 0
  • Badkamer 0
  • Garage 0
  • Bouwjaar 2021
  • Pand Type Handelspand
  • Pand Status Te Huur
  • Aantal gevels Open bebouwing
  • WC's 1

EPC

  • EPC : A
  • EPC Certificaat: 20230424-0002873248-KNR-1
  • A+
  • | EPC A
    A
  • B
  • C
  • D
  • E
  • F
  • G
  • H
Domicill Vastgoed
  • Domicill Vastgoed

Stel je vraag!

Ook bekeken op My Future Home