• Pand Type
  • Grond
  • 3
  • Slaapkamers
  • 0
  • Badkamer
  • Staat
  • 102 m²
  • Area Size
  • 2025
  • Bouwjaar
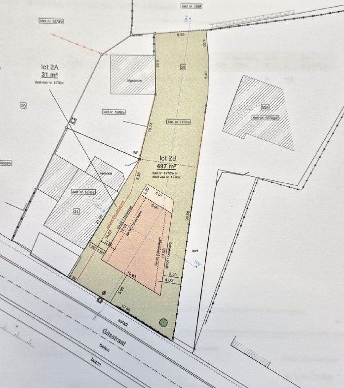
Lot bouwgrond voor alleenstaande woning. Opp 497m². (Ref.16591)
  • €121.500

Beschrijving

Uniek gelegen perceel bouwgrond zonder bouwverplichtingen te Kortemark.

Mogelijkheid tot bouwen van een alleenstaande woning met garage (onder voorbehoud van een nog te verkrijven vergunning).
Alle stedenbouwkundige inlichtingen ten kantore

P- en G-score: A. bevindt zich niet in een risicozone voor overstromingen.

Bel of mail naar info@immostad.com voor alle info (Ref.16591)

  • Adres: Gitsstraat 33
  • Stad: Kortemark
  • Provincie: West-Vlaanderen
  • Postcode: 8610
  • Land: België

Details van het pand

Bijgewerkt op maart 4, 2026 filiaal van 11:33 pm
  • Prijs €121.500
  • Bewoonbare oppervlakte 102 m²
  • Grondoppervlakte 497 m²
  • Slaapkamers 3
  • Badkamer 0
  • Garage 0
  • Bouwjaar 2025
  • Pand Type Grond
  • Pand Status Te Koop

EPC

  • EPC : F
  • EPC Waarde: 1119
  • EPC Certificaat: 3293335
  • A+
  • A
  • B
  • C
  • D
  • E
  • 1119 | EPC F
    F
  • G
  • H
Immostad

Stel je vraag!

Ook bekeken op My Future Home