• Pand Type
  • Grond
  • 0
  • Slaapkamer
  • 0
  • Badkamer
  • Staat
  • Area Size
Roeselare-Brugsesteenweg. BOUWGROND + VERGUNDE PLANNEN voor het bouwen van LOODS 486m2 & LOFT. Unieke ontwikkelingszone op uitstekende ligging. Perceel / tuin inclusief +/- 1080 m2.
  • €320.000

Beschrijving

NOVEMBER – INVESTERINGSMAAND  – Uw persoonlijk bezoek op reservatie 

Roeselare-Brugsesteenweg. BOUWGROND + VERGUNDE PLANNEN voor het bouwen van privatieve LOODS 486m2 & LOFT.  
Unieke ontwikkelingszone op uitstekende ligging.  Perceel / tuin inclusief +/- 1080 m2

Kies hier voor uw eigen project op uitstekende ligging naast het winkelcentrum MAMMOET en verkaveling van 1000 nieuwe woningen.
Overal dichtbij en aan de andere zijde van het winkelcentrum gelegen.
Dit is een zone in volle ontwikkeling en biedt heel vaal groeikansen voor jouw onderneming en jouw gezin.

Afbraak en wederopbouw.

Volgens gekende omgevingsvergunning zijn volgende zaken vergund :
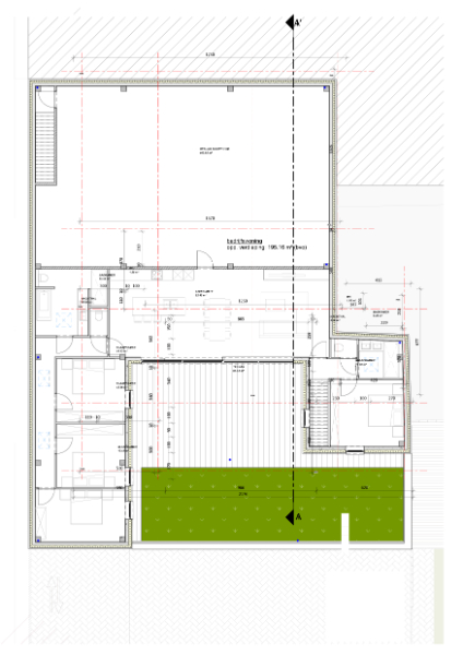
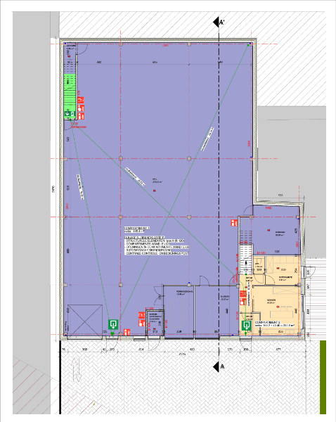
   * gelijkvloers : bedrijfsruimte van 486m2 waarvan 1 ruimte van 26.70m diepte / 16m vooraan met bureel en gem. delen.
   * tuin en terras van 12m / 19m 
   * parking met oprit voor +/- 5-6 wagens
   * inrit loods met aparte poort
   * ruime lichtrijke loft om te verpozen tot 4 slaapkamers
   * ruim zonnig terras
   * ruimte tot latere extra uitbreiding

Komt u de plannen inkijken en wat voor jouwd de mogelijkheden kunnen betekenen?

Bel ons vrijblijvend op voor een afspraak op ons kantoor.
Wij begeleiden u graag met de glimlach op zoek naar uw ideale investering & commercieel pand. T. 051 62 40 40.

  • Adres: Robaardstraat 30
  • Stad: Roeselare
  • Provincie: West-Vlaanderen
  • Postcode: 8800
  • Land: België

Details van het pand

Bijgewerkt op november 12, 2025 filiaal van 7:16 am
  • Prijs €320.000
  • Grondoppervlakte 1080 m²
  • Slaapkamer 0
  • Badkamer 0
  • Garage 0
  • Pand Type Grond
  • Pand Status Te Koop
  • Aantal gevels Half open bebouwing
Domicill Vastgoed
  • Domicill Vastgoed

Stel je vraag!

Ook bekeken op My Future Home